





























Verkoop en informatie
Oude Middelhorst 18, 9751TK Haren Gn
Vraagprijs
WoonoppervlakWoonopp.
173 m2PerceeloppervlakPerceelopp.
459 m2Omschrijving
Deze 2-onder-1-kapwoning is op goede stand gelegen aan de Oude Middelhorst. De woning is de afgelopen jaren niet regulier bewoond geweest en dient derhalve volledig te worden gerenoveerd en gemoderniseerd. Er zijn 3 kamers op de verdieping en er is een ruime zolderverdieping, welke met een vaste trap toegankelijk is. Parkeren kan op eigen terrein.
De Oude Middelhorst is gelegen nabij het treinstation van Haren. Derhalve is de woning goed bereikbaar, zowel per openbaar vervoer als per auto. Alle voorzieningen, zoals supermarkten, scholen en sportfaciliteiten, zijn in Haren zelf te vinden.
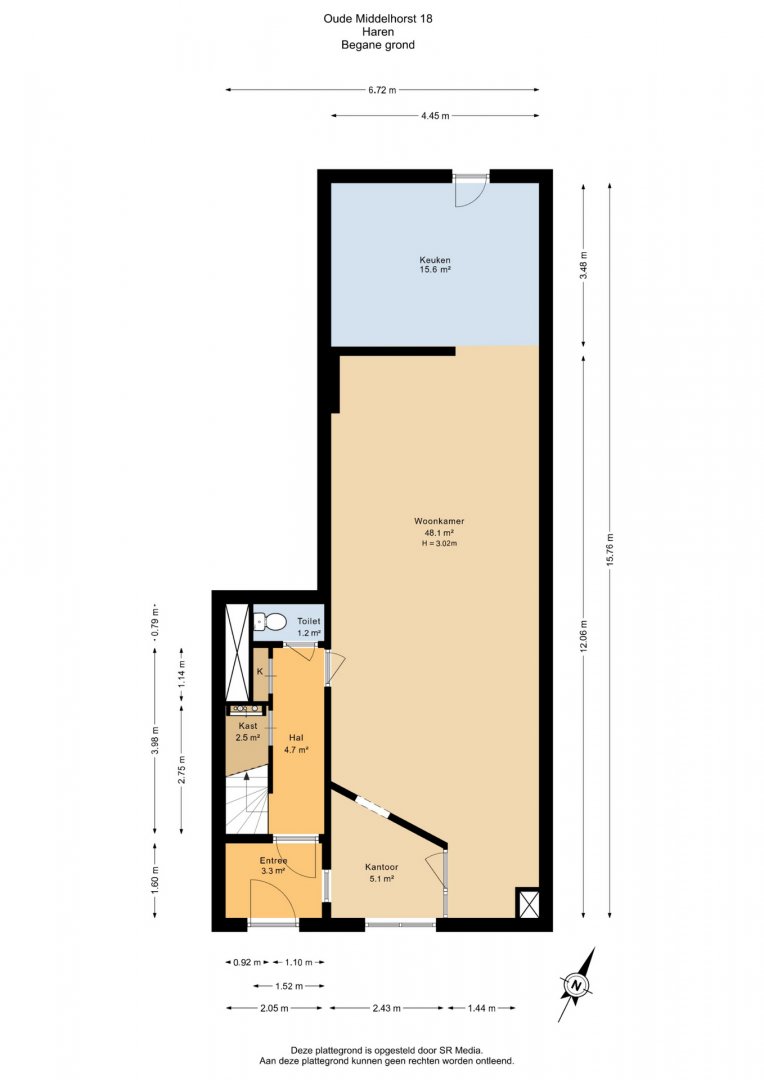
Indeling:
Begane grond: entree, tochtportaal, hal, trapopgang, trapkast alwaar stoppenkast, bergkast, toilet, woonkamer met voormalig open keuken van 69m².
Eerste verdieping: overloop, 2 slaapkamers van respectievelijk 16m² en 13m², keuken van 7m², badkamer van 3m².
Tweede verdieping: open zolderruimte van 26m² en kleine kamer van 6m².
De woning is gelegen op een perceel van circa 450m². Aan de voorzijde van de woning is plek voor 3 auto's. De achtertuin is gesitueerd op het noordwesten.
Bijzonderheden:
- De woning dient volledig gerenoveerd te worden.
- De kozijnen zijn in slechte staat.
- De keuken op de begane grond, douche op de verdieping en de cv-installatie zijn verwijderd.
- Energielabel G.
- Er zijn verkoopvoorwaarden van toepassing. Deze zijn beschikbaar gesteld in de brochure.
Kenmerken
Algemeen
Bouw
Oppervlakten en inhoud
Indeling
Energie
Brochure
Klik op de icoontjes om de documenten te downloaden
Contact

