




























Verkoop en informatie
Molukkenstraat 90, 9715NW Groningen
Vraagprijs
WoonoppervlakWoonopp.
109 m2Omschrijving
Beleggingsobject!
Deze royale bovenwoning aan de noordzijde van de Korrewegbuurt heeft een onttrekkingsvergunning voor 5 personen. Eén van de kamers staat leeg en een tweede kamer komt in de zomer van 2026 leeg. De 5 kamers zijn van goed formaat en er is een grote gemeenschappelijke kamer. Het pand is goed onderhouden en heeft een energielabel C.
De Korrewegbuurt is een gewilde buurt onder studenten door alle voorzieningen in de wijk en de ligging ten opzichte van de Zernike Campus, de Groningse binnenstad en het UMCG. Deze locaties zijn namelijk allemaal goed te bereiken per fiets. Verder is er een bushalte op loopafstand.
Indeling
Begane grond: uitwendige trapopgang.
Eerste verdieping: entree, hal, toilet, eenvoudige keuken, gezamenlijke woonkamer van 21m², balkon.
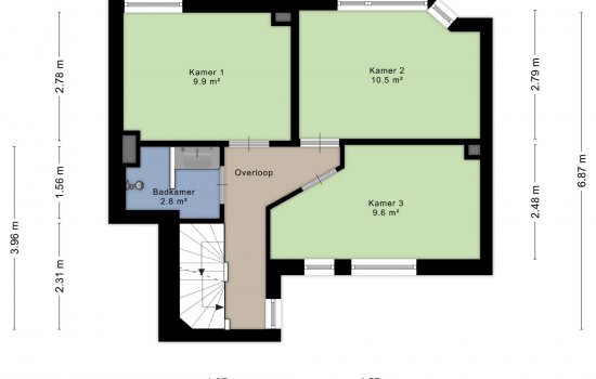
Tweede verdieping: overloop, 3 slaapkamers van respectievelijk 11m², 10m² en 10m², moderne badkamer voorzien van wastafel en douche.
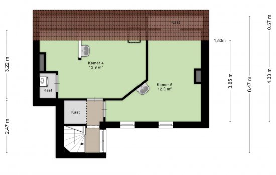
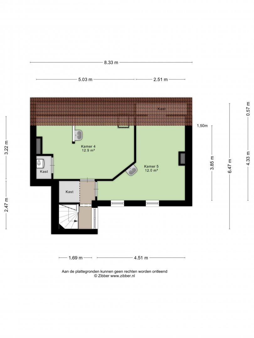
Derde verdieping: overloop, 2 slaapkamers van respectievelijk 13m² en 12m². Deze slaapkamers hebben een eigen wastafel. De cv-ketel is tevens aanwezig op deze verdieping.
Bijzonderheden:
- Kamer 3 is leeg. Kamer 5 komt in de zomer leeg.
- Er is een onttrekkingsvergunning voor 5 personen aanwezig.
- Voorzien van energielabel C.
- Recent is een deel van de beglazing vervangen voor HR++ beglazing.
- De woning wordt verwarmd middels een Remeha cv-ketel uit 2016.
- De VvE is ingeschreven bij de KvK en er is een gezamenlijke opstalverzekering. Ten minste eenmaal per jaar is er overleg over eventueel onderhoud en de kosten van de opstalverzekering. Verder betreft het een slapende VvE.
Kenmerken
Algemeen
Bouw
Oppervlakten en inhoud
Indeling
Energie
Brochure
Klik op de icoontjes om de documenten te downloaden
Contact

