



























































Verkoop en informatie
Oosterstraat 20, 9771AS Sauwerd
Vraagprijs
WoonoppervlakWoonopp.
182 m2PerceeloppervlakPerceelopp.
715 m2Omschrijving
Op een royaal perceel staat deze karakteristieke vrijstaande woning uit 1936, gelegen aan de rand van het levendige dorp Sauwerd. De woning biedt volop leefruimte op de begane grond mede dankzij een praktische aanbouw. Verder zijn er vier slaapkamers en is er een diepe achtertuin met veel privacy. Het is dan ook een fijne gezinswoning met potentie om geheel naar eigen smaak te moderniseren.
Sauwerd is een levendig dorp met diverse voorzieningen, zoals een basisschool en een dorpswinkel. Op korte afstand van de woning zijn tevens sportfaciliteiten aanwezig. De ontsluiting is goed, zowel per auto als per openbaar vervoer en het ligt aan de "doorfietsroute" Groningen-Winsum. Er is ook een treinstation in Sauwerd aanwezig.
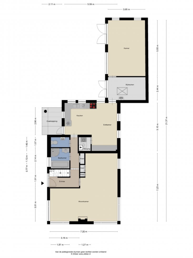
Indeling:
Kelder: ruimte van bijna 6m².
Begane grond: entree, hal, trapopgang, toilet met fonteintje, badkamer voorzien van bad, douche en vaste wastafel, L-vormige woonkamer van 40m², leefkeuken van 25m², technische ruimte alwaar wasmachineaansluiting en cv-ketel, bijkeuken met vlizotrap naar bergzolder, multifunctionele kamer van 23m².
Eerste verdieping: overloop, 4 slaapkamers van respectievelijk 24m², 17m², 14m² en 6m², toilet met fonteintje.
Zolder: vanaf de overloop is de zolder middels een vlizotrap toegankelijk.
Vanuit de keuken, bijkeuken en multifunctionele kamer is de achtertuin toegankelijk. Het betreft een ruime achtertuin op het noorden met veel privacy door de bomenrij. Door de diepte van de tuin is de tuin zonovergoten. In de achtertuin staat een dubbele houten schuur met veel opbergruimte. Aan de berging grenst een carport. Door de ruime oprit is er plek voor meerdere auto's.
Bijzonderheden:
- Veel leefruimte op de begane grond, mede door de uitbouw.
- Energielabel C.
- De woning heeft 14 zonnepanelen (november 2023).
- Er zijn 4 slaapkamers van goed formaat.
- Grotendeels voorzien van dubbel glas.
- De woning heeft potentie voor een extra badkamer op de verdieping.
- De woning wordt verwarmd middels een cv-ketel uit 2012. In de leefkeuken en aanbouw is vloerverwarming aanwezig.
- De woning is voorzien van een carport met berging. Voor de carport is een lange oprit met ruimte voor meerdere auto's.
- In 2008 is de aanbouw aan de achterzijde gerealiseerd.
Kenmerken
Algemeen
Bouw
Oppervlakten en inhoud
Indeling
Energie
Brochure
Klik op de icoontjes om de documenten te downloaden
Contact

