










































Verkoop en informatie
Noorderbinnensingel 22-a, 9712XB Groningen
Vraagprijs
WoonoppervlakWoonopp.
116 m2Omschrijving
VANWEGE DE GROTE BELANGSTELLING IS HET PLANNEN VAN EEN AFSPRAAK VOOR EEN BEZICHTIGING NIET MEER MOGELIJK.
Beleggingsobject!
Nabij het Noorderplantsoen ligt dit keurig onderhouden beleggingsobject. Zo is recentelijk de hele voorzijde van het pand gerenoveerd en is het geheel voorzien van dubbele beglazing. Er is een onttrekkingsvergunning voor 4 personen aanwezig. De woning wordt verhuurd verkocht en per 1 februari 2026 komt er een kamer leeg.
De woning is gelegen in de populaire Hortusbuurt. Deze buurt ligt aan de noordkant van de diepenring, vlakbij het Groningse stadscentrum en het Noorderplantsoen. Allerhande voorzieningen zijn dan ook nabij gelegen. Het UMCG en de Zernike campus zijn tevens op fietsafstand gelegen.
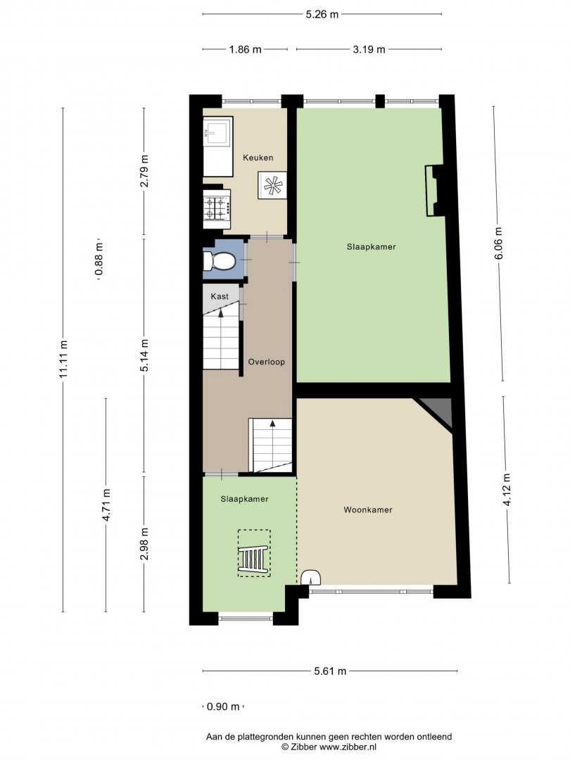
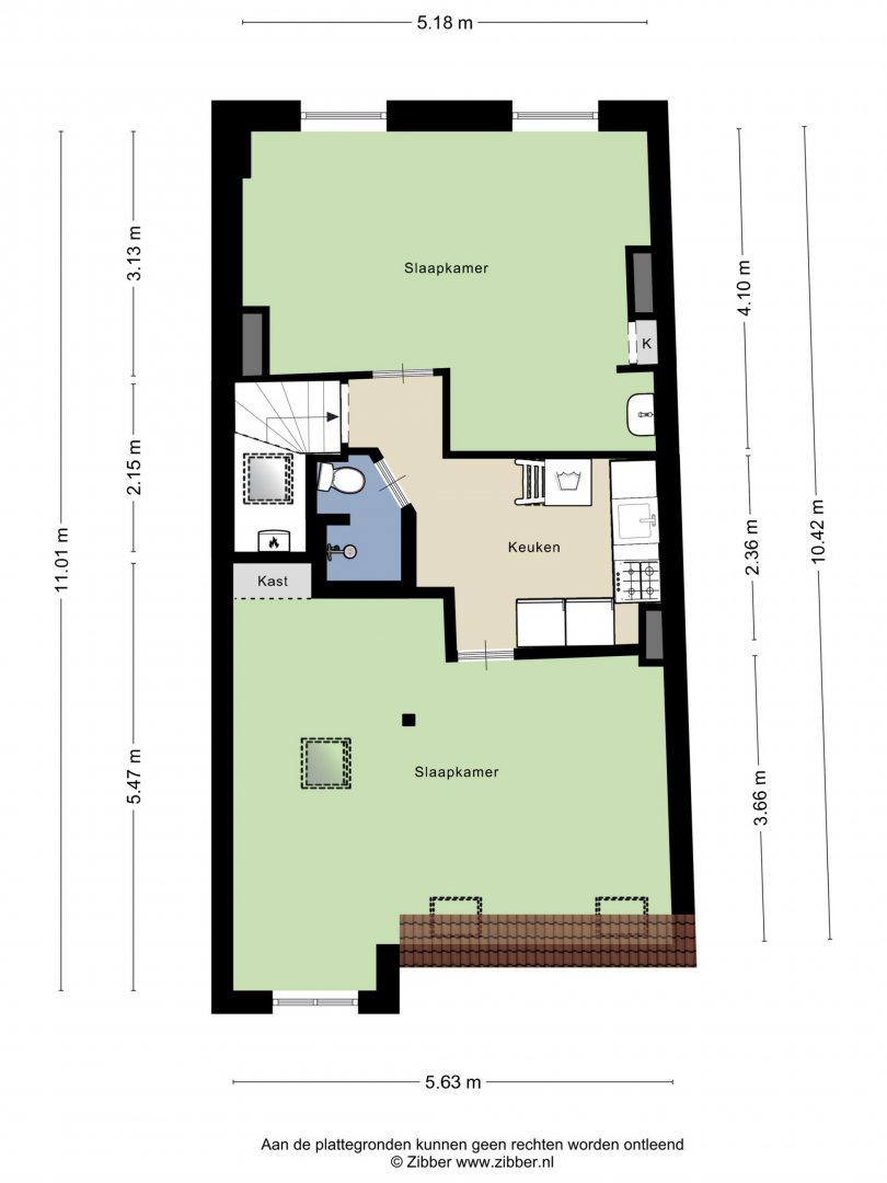
Indeling
Begane grond: entree, trapopgang.
Eerste verdieping: overloop, trapopgang, bergkast, staand toilet, slaapkamer van 19m² met vaste wastafel, slaapkamer van 19m² met vaste wastafel, eenvoudige keuken.
Tweede verdieping: overloop alwaar cv-ketel, eenvoudige tweede keuken, slaapkamer van 22m² met vaste wastafel, slaapkamer van 19m² met vaste wastafel, badkamer voorzien van douche, toilet en mechanische ventilatie.
Bijzonderheden:
- Een huuroverzicht is op aanvraag beschikbaar.
- Per 1 februari 2026 komt er een kamer leeg.
- Energielabel D.
- De woning is deels voorzien van kunststof kozijnen. Het geheel is voorzien van dubbele beglazing, waarvan deels HR++ glas.
- Er zijn 10 zonnepanelen aanwezig. Deze zijn geplaatst nadat het energielabel is opgesteld.
- De woning wordt verwarmd middels een Remeha cv-ketel uit 2018.
- De VvE is in oprichting.
- Het betreft een beschermd stadsgezicht.
Kenmerken
Algemeen
Bouw
Oppervlakten en inhoud
Indeling
Energie
Brochure
Klik op de icoontjes om de documenten te downloaden
Contact

