







































Verkoop en informatie
Hendrik de Vriesstraat 6, 9744AZ Groningen
Vraagprijs
WoonoppervlakWoonopp.
113 m2PerceeloppervlakPerceelopp.
291 m2Omschrijving
Deze helft van een dubbele woning heeft levendig uitzicht en een diepe garage. De woning is gelegen in Hoogkerk-Zuid. Het geheel is gelegen op een kavel die vrij breed is aan de voorzijde, waardoor er genoeg plek is voor 2 auto's op de oprit. De woning is keurig onderhouden en heeft 3 slaapkamers. Aan de achterzijde van de woning is een speeltuintje.
Hoogkerk ligt aan de westkant van de stad Groningen. Allerhande voorzieningen zijn in Hoogkerk aanwezig, zoals supermarkten, scholen en sportvoorzieningen. De ontsluiting is goed, met zowel een bushalte als de A7 nabij gelegen.
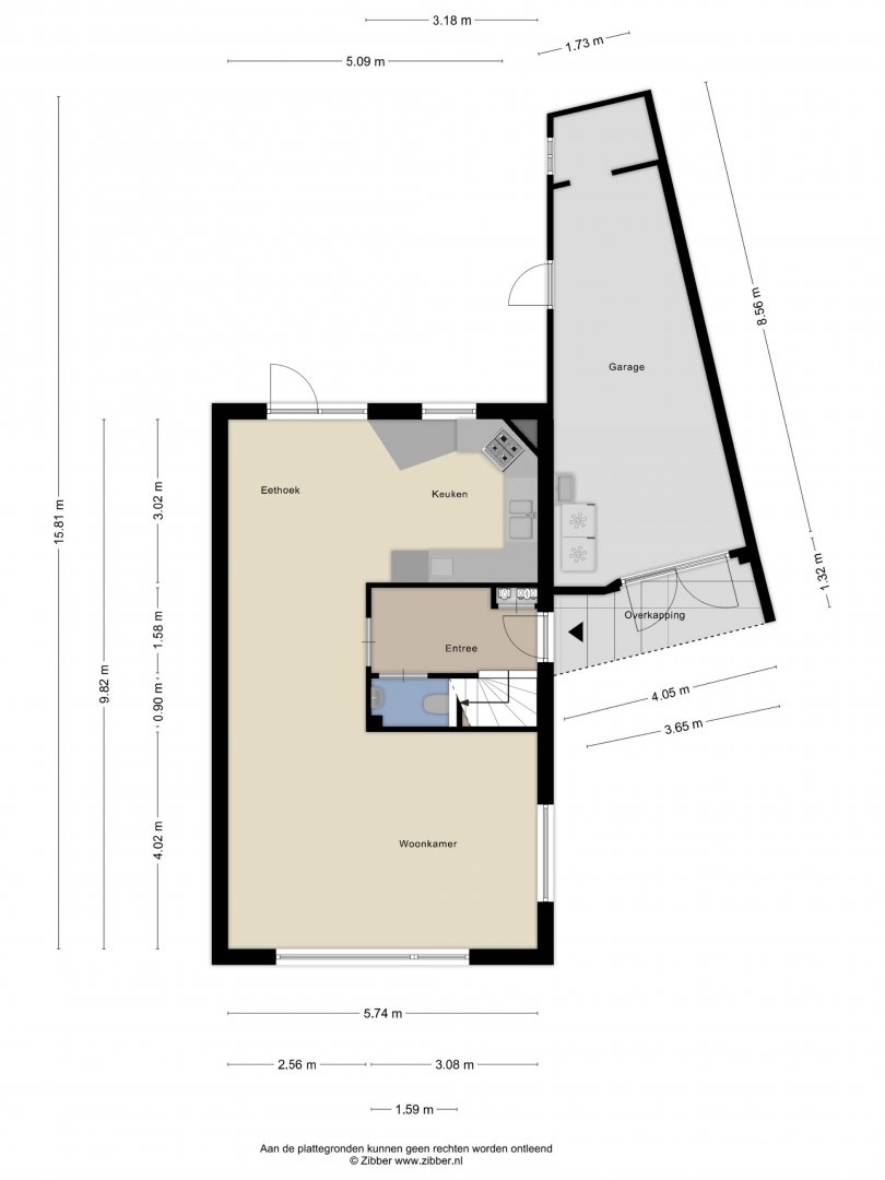
Indeling:
Begane grond: entree, hal, meterkast, toilet met fonteintje, trapopgang, woonkamer met keurige open keuken (samen bijna 50m²).
Eerste verdieping: overloop, 3 slaapkamers van respectievelijk 19m², 10m² en 10m², berging alwaar cv-ketel en wasmachineaansluiting, nette badkamer voorzien van toilet, douche en vaste wastafel.
De achtertuin is fraai aangelegd en is gesitueerd op het noordwesten. Aan het huis grenst een diepe garage van meer dan 20m². De garage is voorzien van elektra en water en heeft een rol-loopdeur.
Bijzonderheden:
- Diepe garage met elektra en water.
- Voorzien van energielabel A.
- Verwarming middels een Vaillant cv-ketel (2013).
- De gehele woning is voorzien van dubbele beglazing.
- Open ruimtelijke ligging geen directe overburen.
- De woning heeft 10 zonnepanelen.
Kenmerken
Algemeen
Bouw
Oppervlakten en inhoud
Indeling
Energie
Brochure
Klik op de icoontjes om de documenten te downloaden
Contact

