





































Verkoop en informatie
Gorechtkade 34-c, 9713CB Groningen
Vraagprijs
WoonoppervlakWoonopp.
76 m2Omschrijving
Aan de populaire Gorechtkade ligt dit leuke appartement op de 3e en bovenste verdieping met prachtig uitzicht aan de voor- en achterzijde. Het appartement heeft een ruimtelijke indeling met 2 slaapkamers en een zeer royale woonkamer-en-suite. Deze is ook geschikt om in te delen als 3e slaap-/studeerkamer. Er is een ruim en zonnig balkon gelegen op het zuidwesten en het appartement is recent opgeknapt, gestuct en voorzien van 4 zonnepanelen.
De Gorechtkade is een ruim opgezette straat in de Oosterparkbuurt. Het is een rustige straat met veel groen en een prachtige vijver. Aan beide eindes van de straat zijn voorzieningen zoals supermarkten te vinden. Het UMCG is op loopafstand gelegen en het Groningse stadscentrum ligt op circa 5 minuten fietsafstand. In de directe omgeving zijn diverse bushaltes aanwezig en het Hoofdstation ligt op circa 10 minuten fietsafstand.
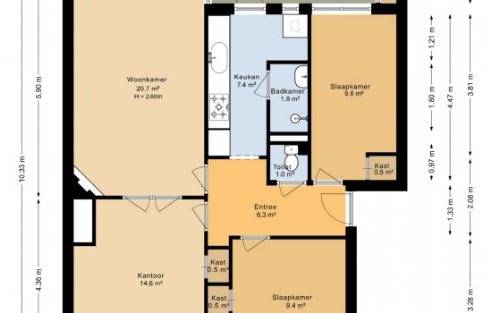
Indeling
Begane grond: complexentree met intercom
Derde verdieping: woningentree, hal, toilet, lichte woonkamer en-suite van in totaal 35m² met toegang tot het ruime en zonnige balkon gelegen op het zuidwesten, keuken met eenvoudige keukenopstelling en eveneens toegang tot het balkon, badkamer met douche en wastafel, slaapkamer van 10m² met inbouwkast, slaapkamer 9m² met inbouwkast. Aan de voorzijde is nog een klein 2e balkon gelegen op het noordoosten toegankelijk vanuit de studeerkamer.
Bij de woning hoort een eigen berging van 5m² die bereikbaar is via een afgesloten brandgang.
Bijzonderheden:
- Energielabel D.
- Verwarming door eigen HR cv-ketel (bouwjaar 2017).
- 4 eigen zonnepanelen (deze zijn niet meegenomen in het energielabel).
- Actieve en gezonde VvE met een maandelijkse bijdrage van €132,24.
- Het appartement is recent opnieuw gestuct.
- De elektra in de woning is grotendeels vernieuwd.
- Nieuwe groepenkast voorzien van 7 groepen waarvan thans 5 in gebruik.
- De ruime woonkamer-en-suite is ook geschikt om als woonkamer en 3e slaap-/studeerkamer te gebruiken.
Kenmerken
Algemeen
Bouw
Oppervlakten en inhoud
Indeling
Energie
Brochure
Klik op de icoontjes om de documenten te downloaden
Contact

