





















































Verkoop en informatie
Domies Laand 4, 9997PR Zandeweer
Vraagprijs
WoonoppervlakWoonopp.
162 m2PerceeloppervlakPerceelopp.
1.518 m2Omschrijving
Op zoek naar rust, ruimte en privacy?
Aan een rustige weg, in het centrum van Zandeweer en midden in een landelijk gebied, staat deze royale vrijstaande woning met vrijstaande dubbele houten garage. De woning is gelegen op een ruim opgezette kavel met een brede oprit.
Deze Noorse woning staat op een royaal perceel van 1.518 m² en heeft diverse authentieke kenmerken, zoals een erker en glas-in-loodramen. Door de tuin rondom en de ruime opzet van het wijkje kun je hier heerlijk genieten van ruimte.
Aan de Domies Laand is dit buurtje gebouwd in 2003.
Zandeweer is een gezellig en rustig dorp in het noorden van Groningen en ligt op fietsafstand van Uithuizen. Het dorp beschikt over een actief verenigingsleven, een dorpshuis ('t Klokhoes) en een basisschool.
Daarnaast zit je vanaf de Domies Laand snel op de Eemshavenweg, waardoor de stad Groningen binnen 20 minuten bereikbaar is en de Eemshaven op minder dan een kwartier afstand ligt.
Indeling
Begane grond: woningentree, toilet, ruime woonkamer met erker (42 m²) en openslaande deuren naar de tuin, half open keuken met een hoekopstelling van 11 m², bijkeuken en een kantoorruimte van 26 m² welke ook is te richten is als slaapkamer.
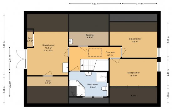
Eerste verdieping: vaste trap vanuit de hal, overloop, badkamer met een hoekbad, vaste wastafelmeubel, douche en toilet van 7 m², 3 slaapkamers van respectievelijk 13 m², 9 m² en 10 m². De ouderslaapkamer heeft een kastenwand, wastafelmeubel en een toegang tot een dakterras
Vliering: bereikbaar via een vlizotrap.
Naast de woning bevindt zich dubbele houten garage. In de garage is een werkplaats aangebracht. In een aangebouwde berging 1,5 bij 6 meter is genoeg ruimte voor al het tuin gereedschap. In de achtertuin staat een vrijstaand houten chalet.
De woning beschikt over een aangelegde tuin rondom. Door de gunstige ligging is er gedurende de hele dag altijd wel een zonnig plekje te vinden.
Bijzonderheden
- Veel kast en bergruimte zowel beneden (bijkeuken en kantoor) als boven.
- Verwarming door middel van een huur cv-ketel.
- Woonkamer voorzien van vloerverwarming en een houtkachel.
- Energielabel A goed geïsoleerd Noors houtskeletbouw.
- Begane grond geheel voorzien van een natuurstenen vloer.
- Dubbele, vrijstaande (houten) garage voorzien van elektrische deuren.
- Vrijstaand houten chalet met eigen buitenterras.
- Brede oprit geschikt voor meerdere auto's.
Kenmerken
Algemeen
Bouw
Oppervlakten en inhoud
Indeling
Energie
Brochure
Klik op de icoontjes om de documenten te downloaden
Contact

