


























































Verkoop en informatie
Broeksterweg 24, 9968TJ Pieterburen
Vraagprijs
WoonoppervlakWoonopp.
154 m2PerceeloppervlakPerceelopp.
2.636 m2Omschrijving
Deze vrijstaande woning heeft een fantastisch uitzicht over de Groningse landerijen. De combinatie van het vrije uitzicht en de ruimte in en om het huis geven een gevoel van vrijheid. De woning heeft een slaapkamer op de begane grond en er is een ruime garage van meer dan 25m² aangebouwd aan het huis.
De woning is gelegen in Broek, een dorpje onder de rook van Pieterburen. In de nabije omgeving kan men dan ook genieten van de prachtige natuur. Zo zijn onder andere de Waddenzee en de botanische tuin Pieterburen dichtbij gelegen. Voorzieningen zijn in nabij gelegen dorpen te vinden. De ontsluiting is goed, met een goede doorgaande weg en busverbinding.
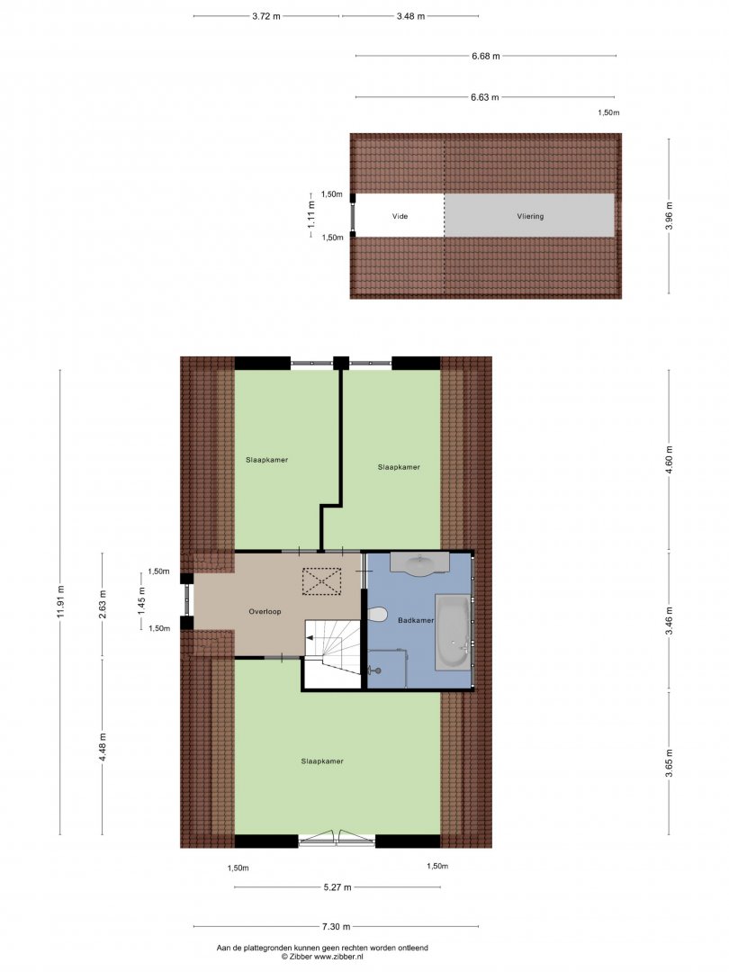
Indeling
Begane grond: entree, hal, toilet, trapopgang, slaapkamer van 15m², woonkamer met open keuken (samen ca. 47,5m²), bijkeuken alwaar cv-ketel, hal, aangebouwde garage van ruim 25m² met vliering.
Eerste verdieping: overloop, 3 slaapkamers van respectievelijk 21m², 14m² en 14m², badkamer voorzien van douche, ligbad, vaste wastafel en toilet.
Zolder: de zolder is via een vlizotrap toegankelijk en biedt genoeg opbergruimte.
De achtertuin is gelegen op het zuidwesten. In de achtertuin is het heerlijk vertoeven: neem een duik in het zwembad of maak gebruik van de jacuzzi of sauna. Verder is er genoeg ruimte om het huis heen waar genoten kan worden van de rust en vrijheid.
Bijzonderheden
- Energielabel B.
- Gebouwd in 2002.
- De woning wordt "as is where is" verkocht.
- Achter de woning ligt een strook grond. Het is een optie om deze strook grond samen met de woning te kopen.
- Het perceel dient nog te worden gesplitst. Het perceel dat bij deze woning hoort is circa 2.636 vierkante meter.
Kenmerken
Algemeen
Bouw
Oppervlakten en inhoud
Indeling
Energie
Brochure
Klik op de icoontjes om de documenten te downloaden
Contact

